Share This Listing

Message

946 characters remaining

Hmm, there seems to have been an error sending your message. Please try again.

Your email has been sent.

Still interested?

Contact the brokers for more information about this property

2 Granite Avenue 2 Granite Ave 2,818 - 17,565 SF of 4-Star Office Space Available in Milton, MA 02186

Save this listing!

Favorite this listing to get notified of price updates, new media and more

HIGHLIGHTS

  • Conveniently located 6 miles from downtown Boston and 8 Miles from Logan International Airport.
  • Nearby retailers such as Dunkin's, Walgreen's and Bank of America provide an added convenience to building tenants.
  • Surface and covered parking is available for added commuter convenience.
  • The building boasts ample amounts of natural light and beautiful views of the Neponset River.
  • Two Granite Ave offers recently renovated large open spaces, a three-story atrium and a fitness center.

ALL AVAILABLE SPACES(3)

Display Rental Rate as

  • SPACE
  • SIZE
  • TERM
  • RENTAL RATE
  • SPACE USE
  • CONDITION
  • AVAILABLE
  • 1st Floor, Ste 150
  • 4,994 SF
  • Negotiable
  • $21.37 /SF/YR $1.78 /SF/MO $106,722 /YR $8,893 /MO
  • Office
  • Full Build-Out
  • Now

This suite is ideal for any office tenant looking for space to meet their needs.

  • Lease rate does not include utilities, property expenses or building services
  • Mostly Open Floor Plan Layout
  • 1 Conference Room
  • Reception Area
  • Corner Space
  • Spacious kitchenette with sitting area.
  • Fully Built-Out as Standard Office
  • 8 Private Offices
  • Central Air and Heating
  • Kitchen
  • Tons of natural light.
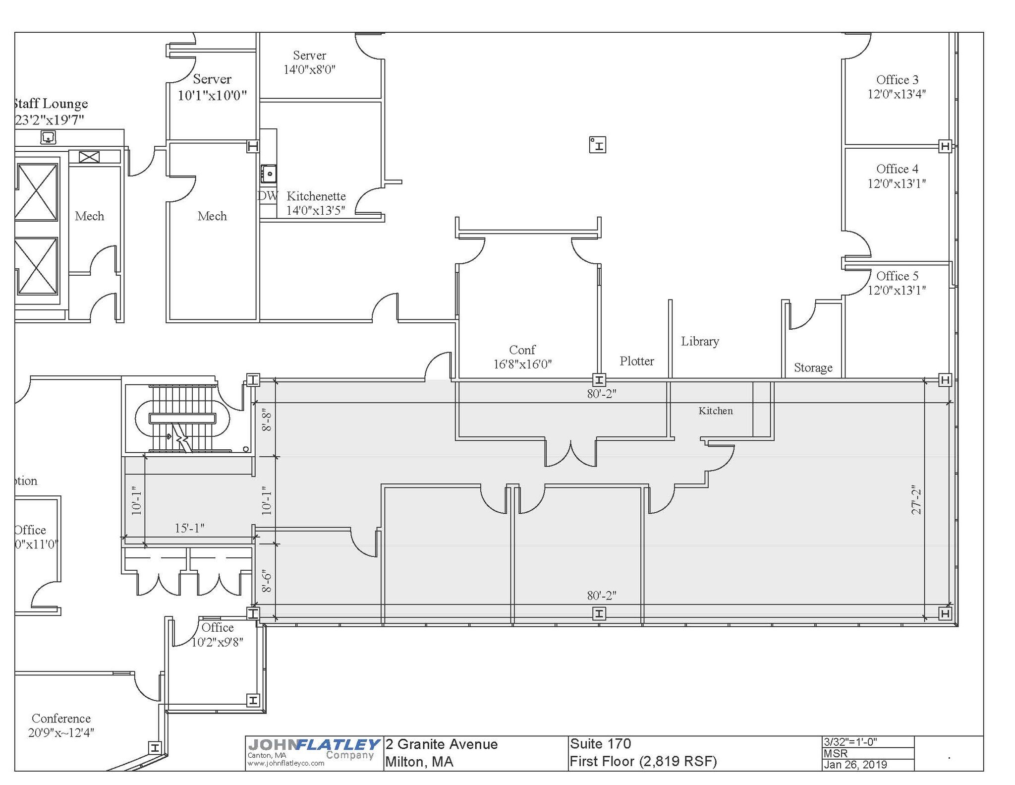
  • 1st Floor, Ste 170
  • 2,818 SF
  • Negotiable
  • $21.37 /SF/YR $1.78 /SF/MO $60,221 /YR $5,018 /MO
  • Office
  • -
  • March 01, 2026
  • Lease rate does not include utilities, property expenses or building services
  • 2nd Floor, Ste 200
  • 9,753 SF
  • Negotiable
  • $21.37 /SF/YR $1.78 /SF/MO $208,422 /YR $17,368 /MO
  • Office
  • -
  • Now
  • Lease rate does not include utilities, property expenses or building services
Space Size Term Rental Rate Space Use Condition Available
1st Floor, Ste 150 4,994 SF Negotiable $21.37 /SF/YR $1.78 /SF/MO $106,722 /YR $8,893 /MO Office Full Build-Out Now
1st Floor, Ste 170 2,818 SF Negotiable $21.37 /SF/YR $1.78 /SF/MO $60,221 /YR $5,018 /MO Office - March 01, 2026
2nd Floor, Ste 200 9,753 SF Negotiable $21.37 /SF/YR $1.78 /SF/MO $208,422 /YR $17,368 /MO Office - Now

1st Floor, Ste 150

Size
4,994 SF
Term
Negotiable
Rental Rate
$21.37 /SF/YR $1.78 /SF/MO $106,722 /YR $8,893 /MO
Space Use
Office
Condition
Full Build-Out
Available
Now

1st Floor, Ste 170

Size
2,818 SF
Term
Negotiable
Rental Rate
$21.37 /SF/YR $1.78 /SF/MO $60,221 /YR $5,018 /MO
Space Use
Office
Condition
-
Available
March 01, 2026

2nd Floor, Ste 200

Size
9,753 SF
Term
Negotiable
Rental Rate
$21.37 /SF/YR $1.78 /SF/MO $208,422 /YR $17,368 /MO
Space Use
Office
Condition
-
Available
Now

1st Floor, Ste 150

Size 4,994 SF
Term Negotiable
Rental Rate $21.37 /SF/YR
Space Use Office
Condition Full Build-Out
Available Now

This suite is ideal for any office tenant looking for space to meet their needs.

  • Lease rate does not include utilities, property expenses or building services
  • Fully Built-Out as Standard Office
  • Mostly Open Floor Plan Layout
  • 8 Private Offices
  • 1 Conference Room
  • Central Air and Heating
  • Reception Area
  • Kitchen
  • Corner Space
  • Tons of natural light.
  • Spacious kitchenette with sitting area.

1st Floor, Ste 170

Size 2,818 SF
Term Negotiable
Rental Rate $21.37 /SF/YR
Space Use Office
Condition -
Available March 01, 2026

  • Lease rate does not include utilities, property expenses or building services

2nd Floor, Ste 200

Size 9,753 SF
Term Negotiable
Rental Rate $21.37 /SF/YR
Space Use Office
Condition -
Available Now

  • Lease rate does not include utilities, property expenses or building services

PROPERTY OVERVIEW

2 Granite Avenue is a five story, 90,595 square foot first-class office building boasting a polished Italian granite stone façade, covered parking and a three-story atrium. The property currently offers state of the art amenities such as a fitness center, covered parking spaces, and a closed-circuit security system. It is home to an impressive tenant roster of attorneys, consultants, engineers, insurance, and healthcare. The unique location provides unmatched visibility, and easy accessibility, situated right off the Neponset River, allowing easy access to walking/hiking trails. Additionally, proximity to the MBTA/Redline, I-93, and only four miles from Boston' s Seaport and Financial Districts, while less than three miles from Milton center, Marina Bay and Quincy center.

  • Atrium
  • Fitness Center
  • Property Manager on Site
  • Security System
  • Waterfront
  • Wheelchair Accessible
  • Air Conditioning
  • Smoke Detector

PROPERTY FACTS

Building Type
Office
Year Built
1997
LoopNet Rating
4 Star
Building Height
5 Stories
Building Size
95,000 SF
Building Class
A
Typical Floor Size
22,649 SF
Unfinished Ceiling Height
11’
Parking
261 Surface Parking Spaces
54 Covered Parking Spaces
  • Listing ID: 6575802

  • Date on Market: 10/15/2025

  • Last Updated:

  • Address: 2 Granite Ave, Milton, MA 02186

Link copied
Your LoopNet account has been created!

Please Share Your Feedback

We welcome any feedback on how we can improve LoopNet to better serve your needs.
X
{{ getErrorText(feedbackForm.starRating, "rating") }}
255 character limit ({{ remainingChars() }} charactercharacters remainingover)
{{ getErrorText(feedbackForm.msg, "rating") }}
{{ getErrorText(feedbackForm.fname, "first name") }}
{{ getErrorText(feedbackForm.lname, "last name") }}
{{ getErrorText(feedbackForm.phone, "phone number") }}
{{ getErrorText(feedbackForm.phonex, "phone extension") }}
{{ getErrorText(feedbackForm.email, "email address") }}