Your email has been sent.
Downtown High Exposure Building 505 S A St 3,936 SF of Office/Retail Space Available in Springfield, OR 97477



HIGHLIGHTS
- Stand-alone building situated on the signalized corner of 5th Street and S. A Street
- Property could easily be converted into office or retail
- 20 plus parking spots
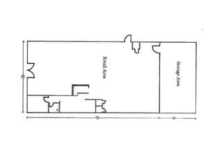
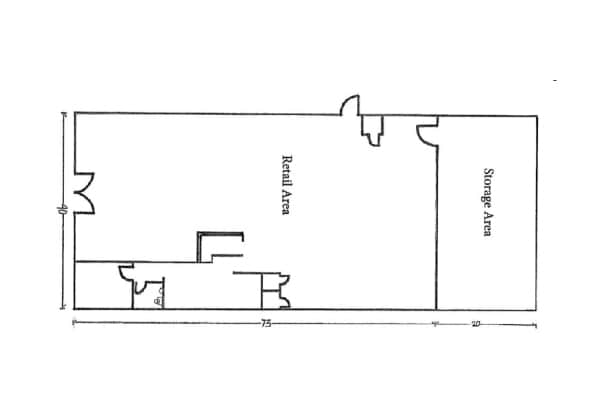
SPACE AVAILABILITY (1)
Display Rental Rate as
- SPACE
- SIZE
- TERM
- RENTAL RATE
- RENT TYPE
| Space | Size | Term | Rental Rate | Rent Type | ||
| 1st Floor | 3,936 SF | Negotiable | $15.60 /SF/YR $1.30 /SF/MO $61,402 /YR $5,117 /MO | Triple Net (NNN) |
1st Floor
- Lease rate does not include utilities, property expenses or building services
Rent Types
The rent amount and type that the tenant (lessee) will be responsible to pay to the landlord (lessor) throughout the lease term is negotiated prior to both parties signing a lease agreement. The rent type will vary depending upon the services provided. For example, triple net rents are typically lower than full service rents due to additional expenses the tenant is required to pay in addition to the base rent. Contact the listing broker for a full understanding of any associated costs or additional expenses for each rent type.
1. Full Service: A rental rate that includes normal building standard services as provided by the landlord within a base year rental.
2. Double Net (NN): Tenant pays for only two of the building expenses; the landlord and tenant determine the specific expenses prior to signing the lease agreement.
3. Triple Net (NNN): A lease in which the tenant is responsible for all expenses associated with their proportional share of occupancy of the building.
4. Modified Gross: Modified Gross is a general type of lease rate where typically the tenant will be responsible for their proportional share of one or more of the expenses. The landlord will pay the remaining expenses. See the below list of common Modified Gross rental rate structures: 4. Plus All Utilities: A type of Modified Gross Lease where the tenant is responsible for their proportional share of utilities in addition to the rent. 4. Plus Cleaning: A type of Modified Gross Lease where the tenant is responsible for their proportional share of cleaning in addition to the rent. 4. Plus Electric: A type of Modified Gross Lease where the tenant is responsible for their proportional share of the electrical cost in addition to the rent. 4. Plus Electric & Cleaning: A type of Modified Gross Lease where the tenant is responsible for their proportional share of the electrical and cleaning cost in addition to the rent. 4. Plus Utilities and Char: A type of Modified Gross Lease where the tenant is responsible for their proportional share of the utilities and cleaning cost in addition to the rent. 4. Industrial Gross: A type of Modified Gross lease where the tenant pays one or more of the expenses in addition to the rent. The landlord and tenant determine these prior to signing the lease agreement.
5. Tenant Electric: The landlord pays for all services and the tenant is responsible for their usage of lights and electrical outlets in the space they occupy.
6. Negotiable or Upon Request: Used when the leasing contact does not provide the rent or service type.
7. TBD: To be determined; used for buildings for which no rent or service type is known, commonly utilized when the buildings are not yet built.
PROPERTY FACTS
| Total Space Available | 3,936 SF | Gross Leasable Area | 3,936 SF |
| Property Type | Retail | Year Built | 1953 |
| Property Subtype | Storefront Retail/Office | Parking Ratio | 7.62/1,000 SF |
| Total Space Available | 3,936 SF |
| Property Type | Retail |
| Property Subtype | Storefront Retail/Office |
| Gross Leasable Area | 3,936 SF |
| Year Built | 1953 |
| Parking Ratio | 7.62/1,000 SF |
ABOUT THE PROPERTY
REDUCED PRICE! 505 S A Street, Springfield, is a stand-alone building in the heart of Downtown Springfield. The 3,936 SF building sits at a signalized corner across 5th Street from Dutch Bros Coffee and Chow. The property is 0.51 acres and only one block south of Springfield’s main retail corridor (Main Street). Main Street is home to some of Springfield’s favorite retailers - Washburn Cafe, Tavern on Main, Lovely, and more. The property has ample parking, easy access, and the floorplan has flexibility that caters to multiple uses. Also available for purchase.
- Bus Line
- Pylon Sign
- Signage
- Signalized Intersection
- Drive Thru
NEARBY MAJOR RETAILERS
Presented by
Downtown High Exposure Building | 505 S A St
Hmm, there seems to have been an error sending your message. Please try again.
Thanks! Your message was sent.



