Your email has been sent.
69100 Villeurbanne 1,184 SF Office Condo Unit Offered at $415,708
Some information has been automatically translated.
INVESTMENT HIGHLIGHTS
- Kitchen
- ADA-compliant access
- Furnished
EXECUTIVE SUMMARY
This site is located in a strategic area in close proximity to Lyon, offering excellent access to major highways and public transportation. The location is particularly appealing to businesses looking to benefit from proximity to the city center while enjoying a quieter and more accessible environment. The area is undergoing significant development, with a high concentration of companies and startups, especially in the technology, digital, and industrial sectors. This economic dynamism, combined with strong connectivity, makes it a prime choice for businesses seeking visibility and growth opportunities. Additionally, the presence of numerous nearby amenities, such as restaurants, coworking spaces, and shops, makes this location especially convenient for employees. The area is well-connected, both for local travel and for links to major neighboring cities, making it a key advantage for businesses seeking flexibility and connectivity.
PROPERTY FACTS
| Total Building Size | 10,000 - 60,000 SF | Floors | 6 |
| Property Type | Multifamily (Condo) | Year Built | 1850 - 1859 |
| Property Subtype | Apartment | Tenancy | Single |
| Building Class | C |
| Total Building Size | 10,000 - 60,000 SF |
| Property Type | Multifamily (Condo) |
| Property Subtype | Apartment |
| Building Class | C |
| Floors | 6 |
| Year Built | 1850 - 1859 |
| Tenancy | Single |
AMENITIES
UNIT AMENITIES
- Kitchen
- Office
SITE AMENITIES
- On-Site Retail
- Key Fob Entry
1 UNIT AVAILABLE
| Unit Size | 1,184 SF | Condo Use | Office |
| Price | $415,708 | Sale Type | Investment or Owner User |
| Price Per SF | $351.10 | Agency Fee | 3.90% of sale price |
| Unit Size | 1,184 SF |
| Price | $415,708 |
| Price Per SF | $351.10 |
| Condo Use | Office |
| Sale Type | Investment or Owner User |
| Agency Fee | 3.90% of sale price |
DESCRIPTION
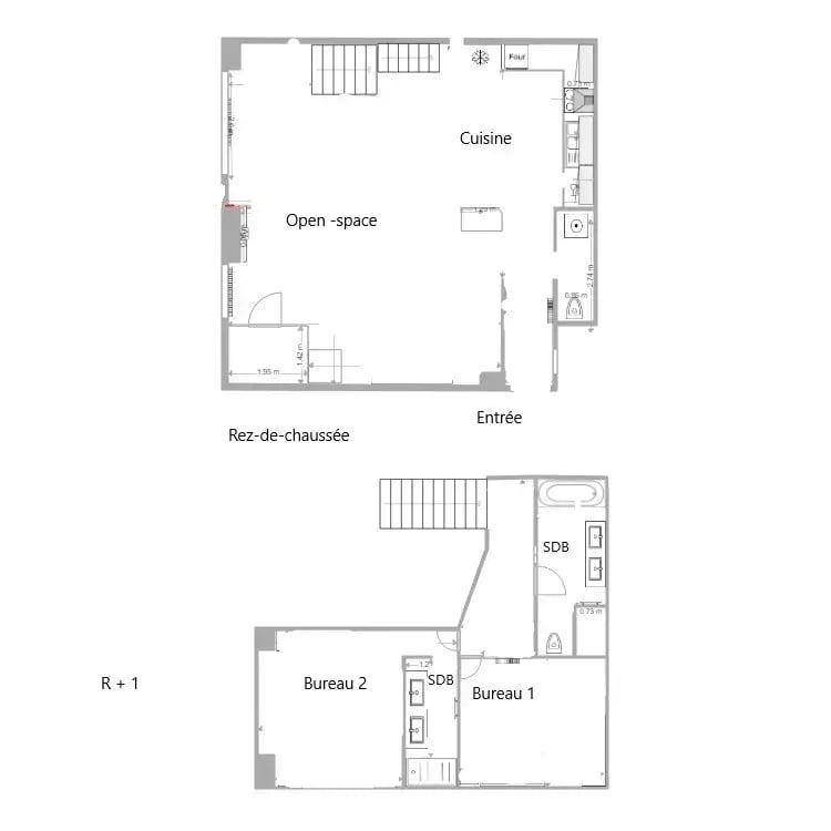
The space offered features a professional premises spread over two levels, providing a total area of 110 m², including 102.3 m² under the Carrez law. The ground floor consists of a large open space of 57 m², ideal for an open and collaborative work environment, with a fitted and equipped kitchen, as well as separate restrooms. Upstairs, two offices allow for the separation of work areas, accompanied by a bathroom with toilet and a shower room. A finished basement of 17 m² completes this functional setup, offering additional storage or extra space.
SALE NOTES
The property is offered for sale at a price of €364,000, with fees of 3.9% payable by the buyer.
Plan
Presented by
"69100 Villeurbanne"
Hmm, there seems to have been an error sending your message. Please try again.
Thanks! Your message was sent.
